Przedstawiam ofertę sprzedaży domu w zabudowie bliźniaczej o powierzchni użytkowej 130 m², położonego w spokojnej i bardzo dobrze skomunikowanej miejscowości Biskupice. Nieruchomość usytuowana jest na 5-arowej działce, w pełni zagospodarowanej.
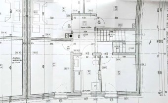
Parter
Piętro
Standard i technologia wykonania
Dom budowany jest metodą tradycyjną z użyciem wysokiej jakości materiałów. Prace budowlane trwają, wykonanie elewacji przewidziane jest w najbliższym czasie. Zdjęcia budynku wykończonego użyte w ogłoszeniu są tylko wizualizacją poglądową, nie odzwierciedlają stanu faktycznego.
W standardzie:
Lokalizacja
Świetnie położona nieruchomość:
Zapraszam na prezentację tej ciekawej nieruchomości.
Opis oferty zawarty na stronie internetowej sporządzany jest na podstawie oględzin nieruchomości oraz informacji uzyskanych od właściciela, może podlegać aktualizacji i nie stanowi oferty określonej w art. 66 i następnych K.C.



