Wola Radziszowska

Dom na sprzedaż

Opis nieruchomości

Parterowy, przestronny, jasny dom wzniesiony w technologii tradycyjnej i z wysokiej jakości materiałów budowlanych, położony w gminie Skawina.
Sprzedawany w stanie deweloperskim, 
Pozwolenie na użytkowanie/odbiór JEST ! 
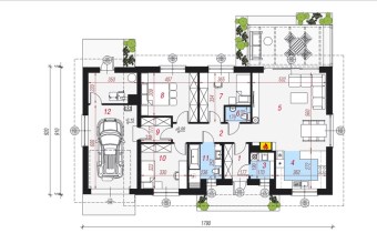
Dom składa się z 3 oddzielnych pokoi, dużego salonu z aneksem kuchennym, łazienki, WC, pralni, wiatrołapu, garażu, pomieszczenia techniczno-gospodarczego.

Trochę szczegółów technicznych:
powierzchnia użytkowa 126m2
powierzchnia działki ponad 800m2
ściany zewnętrzne z pustaków H+H
okna PCV 3-szybowe 5-komorowe
ocieplenie styropian 20cm
ogrzewanie podłogowe na całej powierzchni
kompletne instalacje wod-kan-gaz
instalacja internetowa
rolety antywłamaniowe
kocioł gazowy dwufunkcyjny
teren na zewnątrz - opaski dookoła domu
teren ogrodzony, bez bramy wjazdowej

Okolica i odległości:
przystanek komunikacji miejskiej 120m
przystanek PKP 730m
centrum handlowe  300m
szkoła podstawowa i przedszkole 450m
poczta 230m
centrum Skawiny  9km
Rynek Główny w Krakowie  25km

Kupujący NIE płaci 2% podatku PCC, nieruchomość jest sprzedawana na fakturę VAT.
Cena 1.030.000 z podatkiem VAT.

Serdecznie zapraszam na spotkanie i prezentację.
 

Nota prawna

 

Opis oferty zawarty na stronie internetowej sporządzany jest na podstawie oględzin nieruchomości oraz informacji uzyskanych od właściciela, może podlegać aktualizacji i nie stanowi oferty określonej w art. 66 i następnych K.C.

Szczegóły oferty

Symbol oferty DS-13077
Powierzchnia 126,00 m²
Powierzchnia działki 811 m²
Ilość pokoi 4
Rodzaj domu wolnostojący
Technologia budowlana pustak MAX
Standard
Ilość pięter w budynku 1
Wymiary działki 27 x 30 m
Garaż w budynku
Stan prawny Własność
Okna nowe PCV
Instalacje nowe
Balkon brak
Zagosp. działki zagospodarowana
Ukształtowanie działki płaska
Kształt działki prostokąt
Pokrycie dachu blacha
Pozwolenie na użytkowanie częściowe
Stan budynku Do zamieszkania
Ogrodzenie działki brak
Rok budowy 2025
Gaz tak - miejski
Woda miejska
Dojazd asfalt
Otoczenie działki zabudowane
Ogrzewanie podłogowe
Tarasy taras maly
Drzwi antywłamaniowe tak
Rolety antywłamaniowe tak
Prąd tak
Kanalizacja tak
Klucze tak

Pomieszczenia

Podłogi pokoi wylewka
Typ kuchni z zabudową kuchenną
Rodzaj kuchni aneks kuchenny - połączony z salonem
Podłoga kuchni wylewka
Typ łazienki osobno z wc, z oknem
Liczba łazienek 1
Glazura łazienki bez glazury
Podłoga łazienki wylewka
Wyposażenie łazienki natrysk
Liczba WC 1
Glazura WC bez glazury
Podłoga WC wylewka
Liczba przedpokoi 2
Podłoga przedpokoi wylewka

Lokalizacja

Kalkulator kredytowy

PLN
%
Wysokość raty

Kalkulator kosztów

PLN
PLN
PLN
PLN
PLN
PLN
%
PLN
Podatek od czynności cywilno-prawnych
Taksa notarialna (opłata notarialna)
VAT od taksy notarialnej (opłaty notarialnej)
Wniosek do WKW
VAT od wniosku do WKW
Prowizja agencji nieruchomości
VAT od prowizji agencji nieruchomości
Wypisy aktu notarialnego - około
RAZEM (cena + opłaty)

Napisz do nas

Proszę wypełnić to pole
Proszę wypełnić to pole
Proszę wypełnić to pole
Proszę wypełnić to pole
Trwa wysyłanie...

Ta strona wykorzystuje pliki cookies w celach statystycznych oraz w celu dostosowania naszych serwisów do indywidualnych potrzeb klientów. Zmiany ustawień dotyczących plików cookie można dokonać w dowolnej chwili modyfikując ustawienia przeglądarki. Korzystanie z tej strony bez zmian ustawień dotyczących cookies oznacza, że będą one zapisane w pamięci urządzenia.

rozumiem